Doorgaan naar inhoud
Studio Brecht Vermeylen
Home
Projecten
Visie
Contact
Studio Brecht Vermeylen
Toggle menu
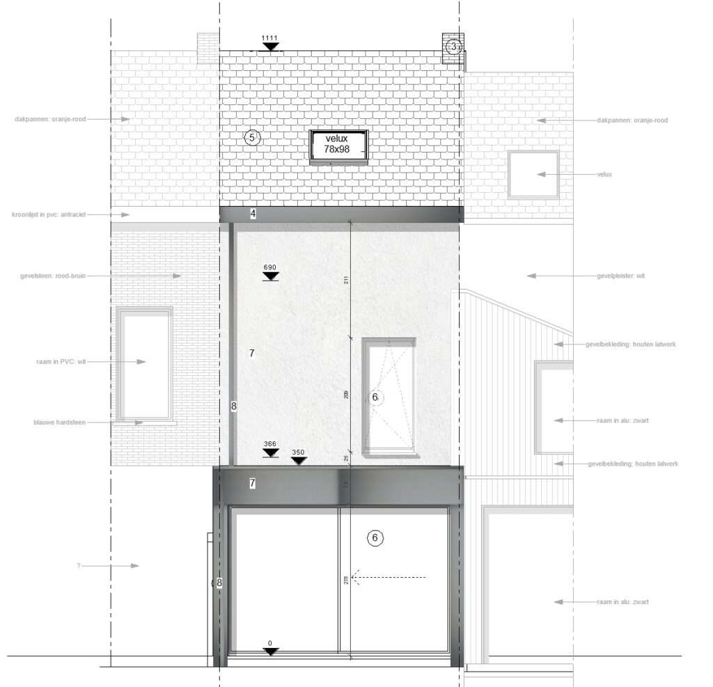
Rijwoning
Deze verbouwing is gelegen in Leuven
…
Home
Projecten
Visie
Contact